Camping am Hasetal, Meppen

Tourismus und Freizeit

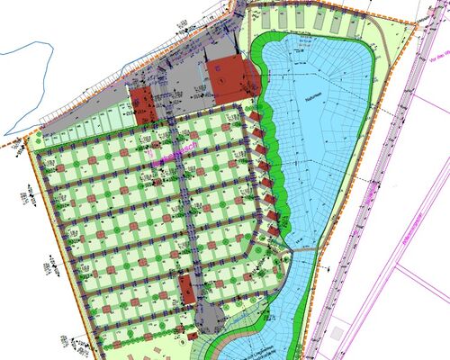
Zwischen Meppen und Helte entsteht auf einem 75.000 m² großen Gelände mitten in der Natur ein neuer Campingplatz:  „Camping am Hasetal“. Familie Schütte aus Helte steht als Bauherrin hinter diesem Vorhaben und wird später auch den Campingplatz betreiben. Ihre Idee ist es, in Meppen eine Campingoase für Besucher jeden Alters zu schaffen. Das vielfältige Angebot umfasst unter anderem Stellplätze für Wohnmobile, Campingparzellen mit eigenen Sanitäranlagen, einen Verkaufsladen, gastronomische Einrichtungen mit Panoramablick auf die Natur sowie einen Spielbereich. Das Herzstück der Anlage bildet ein eigens angelegter Natursee, der zum Entspannen und Baden einlädt.

AM Projektentwicklung übernimmt die Hochbauplanung für alle Gebäude. Erste Erdarbeiten auf dem Grundstück sind bereits im Gange.

Projektdetails

Kunde Familie Schütte
Standort Meppen-Helte
Projektzeitraum 05.2024-12.2025

Daten & Fakten

- Grundstücksfläche  75.000 m²

- Campingplatz mit 16  Wohnmobilstellplätzen

- 117 Campingparzellen mit eigener Sanitäreinheit

- Chalets am See und Zeltwiese

- Empfangsgebäude mit Rezeption und Verwaltung

- Verkaufsladen und Verleih für Fahrräder und SUP

- Gastronomie mit Freiterrasse am See und Dachterrasse (etwa 80 Plätze innen und 80 Plätze außen)

- Wirtschaftsgebäude für Logistik mit Hundewaschstation

- Spielhalle (Tischtennis, Kicker usw.)

- Maschinenpark mit Werkstätten und Sozialtrakt,

- Abwasserstation für Wohnmobile und Camper

- Zentrales Wasch- und Sanitärgebäude mit Office-Raum für Gäste, Koch-, Ess- und Spielbereich

- Quatro- und Duo- Sanitärboxen für die einzelnen Campingparzellen

Architektur | Bauplanung | Bauleitung

Wie dürfen wir Sie unterstützen?